negotiated price
For sale4-room apartment with balcony, /81m2/, Žilina - Vlčince III
Location: Žilina
4 rooms
81 m²
Description
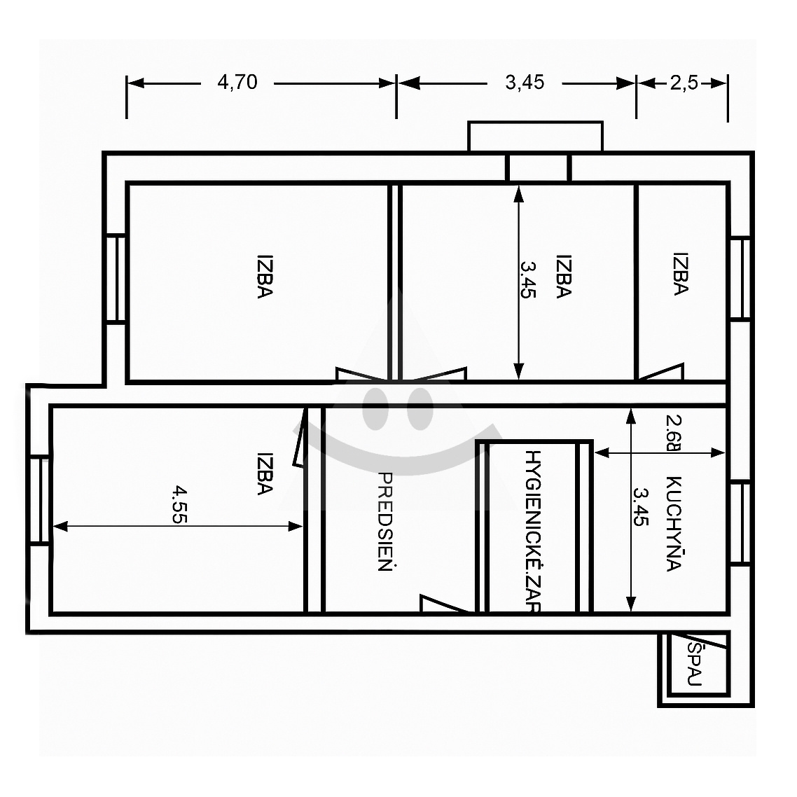
Reality Alpia offers you a 4-room apartment with a balcony for sale, /81m2/, Žilina - Vlčince III. The layout consists of an entrance hall, four separate rooms, kitchen, pantry, bathroom and toilet. The apartment has been partially renovated - brick core and electrical wiring - core, kitchen, hallway. The advantages are a well-accessible location, civic amenities, the condition of the apartment building and a new elevator. The bonus is a cellar and a balcony. The energy certificate has not been delivered. We will be happy to provide you with more information on tel. no.: 0948 353 500 or at www.realityalpia.sk.
Location
Characteristics
Benefits
- Najlepšia cena za m2
- Najlacnejšia v okolí
Date of last update: 14.11.2025
Contact
Similar properties
4 rooms
85 m²
3-room apartment with balcony, terrace or garden in a new building (APARTMENT HOUSE SCENERIA) - Žilina
4 rooms
147 m²
4-room apartment with terrace / 184 m2 / - Súľov
4 rooms
40 m²
We are preparing to offer a 1-room apartment in its original condition, Žilina - Vlčince
4 rooms
72 m²
3-room apartment with a balcony, /71 m2/, Žilina - Vlčince 3
4 rooms
90 m²
Large 3-room apartment /90 m2/ - Žilina - Závodie
4 rooms
36 m²
Alpia Real Estate offers 1-bedroom apartments for sale in a new building in Žilina.
4 rooms
77 m²
Superior 3-room apartment with balcony and two loggias /67+10 m2/ Žilina - Bulvár
4 rooms
83 m²
Renovated 3-room apartment / 83 m2 / - Žilina ( Vlčince )
4 rooms
75 m²
3-room apartment with balcony, terrace or garden in a new building (APARTMENT HOUSE SCENERIA) - Žilina
4 rooms
35 m²
We are preparing a 1-room apartment with two loggias for sale /35 m2/ Vlčince I, Žilina
4 rooms
47 m²
2-room flat for sale, Závodie, Žilina













